Home Aanbod Vijverhuis Klingelbeek 20

Klingelbeek 20

Klingelbeek 20 is de grootste woning in het Vijverhuis. Met een prachtig ruim terras aan de vijverzijde, 2 patio's en hoge ramen is het landschap onderdeel van de woning.

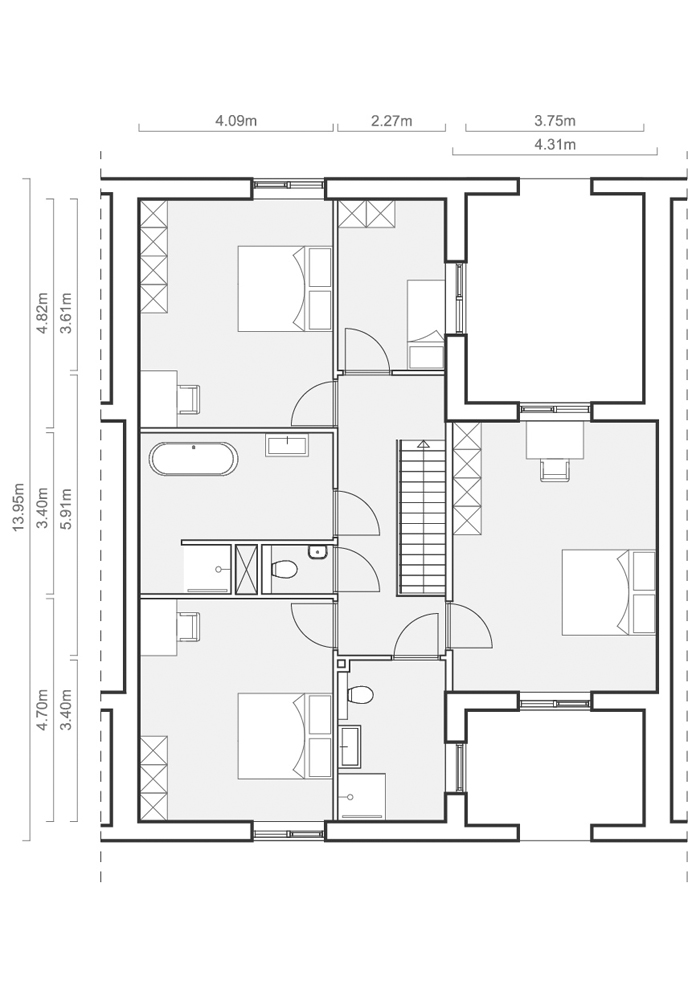
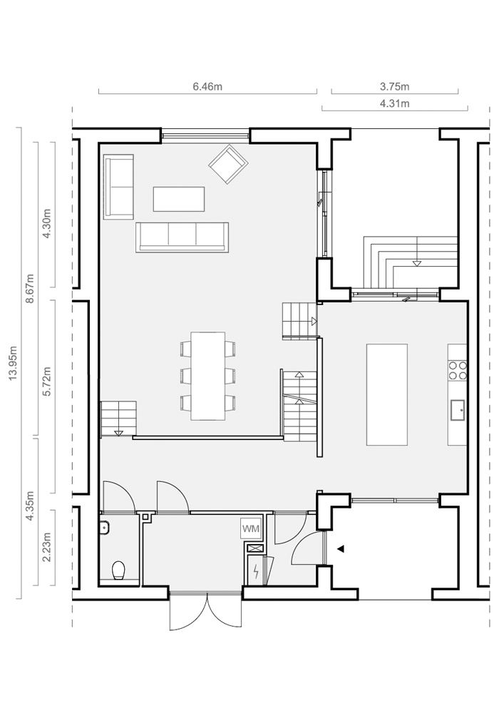
  • Woonoppervlakte: 218 m2
  • Inhoud: 1225 m3
  • Plafondhoogte variërend van 2,8 m tot 4 m
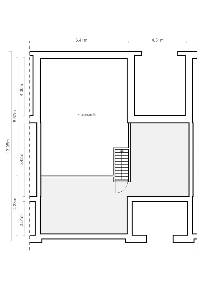
  • Plafondhoogte kelder: 2,6 m
  • Oppervlakte kelder: 50 m2
  • Berging: 7 m2
  • Patio voorzijde: 10 m2
  • Patio vijverzijde: 17 m2
  • Terras: 18 m2

Status: verkocht 

In elke geschakelde villa is een berging aanwezig.

Interesse?

Wilt u graag wonen op Landgoed Klingelbeek of meer informatie?

Plattegrond