Home Aanbod Bosgebouw Klingelbeek 8

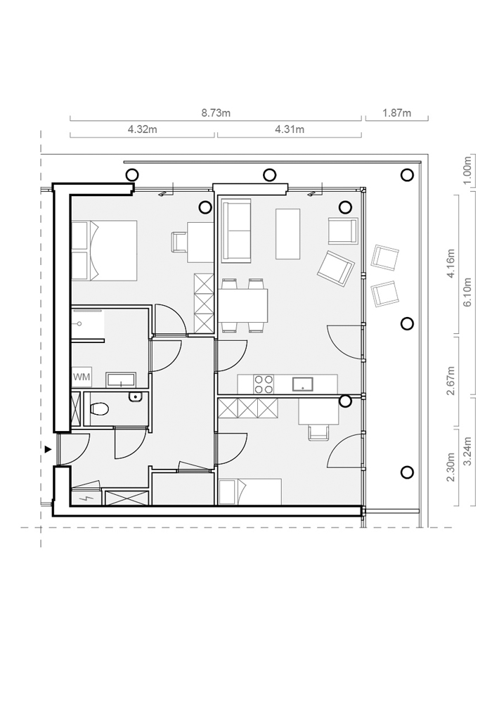
Klingelbeek 8

Klingelbeek 8 is een van de vier appartementen op de begane grond van het Bosgebouw. 

  • Begane grond Bosgebouw
  • Woonoppervlakte: 82 m2
  • Inhoud: 312 m3
  • Plafondhoogte: 3 m
  • Buitenruimte: 22 m2

Status: verkocht

De bergingen voor het Bosgebouw bevinden zich in de parkeerkelder. Bij elke woning hoort een berging die toegankelijk is via de parkeerkelder. Deze is bij de aankoop van een woning inbegrepen.​

Interesse?

Wilt u graag wonen op Landgoed Klingelbeek of meer informatie?

Plattegrond