Home Aanbod Bosgebouw Klingelbeek 6

Klingelbeek 6

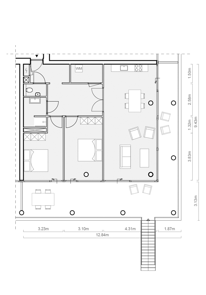
Klingelbeek 6 is een van de vier appartementen op de begane grond van het Bosgebouw. De royale buitenruimte ligt op het oosten en zuiden - met uitzicht over de Rijn.

  • Begane grond Bosgebouw
  • Woonoppervlakte: 102 m2
  • Inhoud: 370 m3
  • Plafondhoogte: 3 m
  • Buitenruimte: 52 m2

Status: verkocht​

De bergingen voor het Bosgebouw bevinden zich in de parkeerkelder. Bij elke woning hoort een berging die toegankelijk is via de parkeerkelder. Deze is bij de aankoop van een woning inbegrepen.​

Interesse?

Wilt u graag wonen op Landgoed Klingelbeek of meer informatie?

Plattegrond