Home Aanbod Bosgebouw Klingelbeek 4

Klingelbeek 4

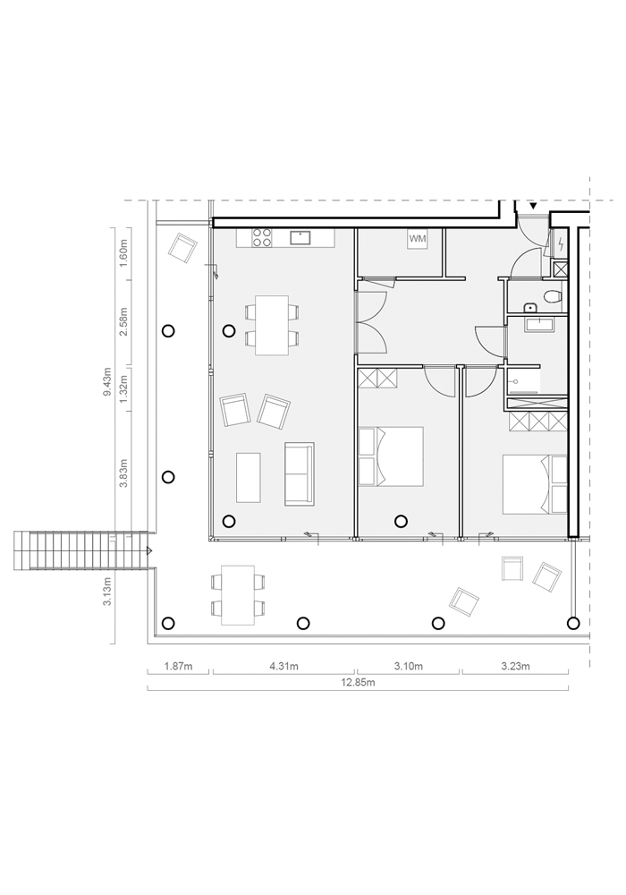
Klingelbeek 4 is een van de vier appartementen op de begane grond van het Bosgebouw. Met een riante buitenruimte aan de west- en zuidzijde is het uitzicht over de vijver en de Rijn spectaculair.

  • Begane grond Bosgebouw
  • Woonoppervlakte: 102 m2
  • Inhoud: 370 m3
  • Plafondhoogte: 3
  • Buitenruimte: 52 m2

Status: Verkocht

De bergingen voor het Bosgebouw bevinden zich in de parkeerkelder. Bij elke woning hoort een berging die toegankelijk is via de parkeerkelder. Deze is bij de aankoop van een woning inbegrepen.

Interesse?

Wilt u graag wonen op Landgoed Klingelbeek of meer informatie?

Plattegrond